参考プラン
- トップ
- 参考プラン
建築条件無し
建築条件無しですので、お好きな時期、お好きなハウスメーカーで
建てて頂くことが可能です。
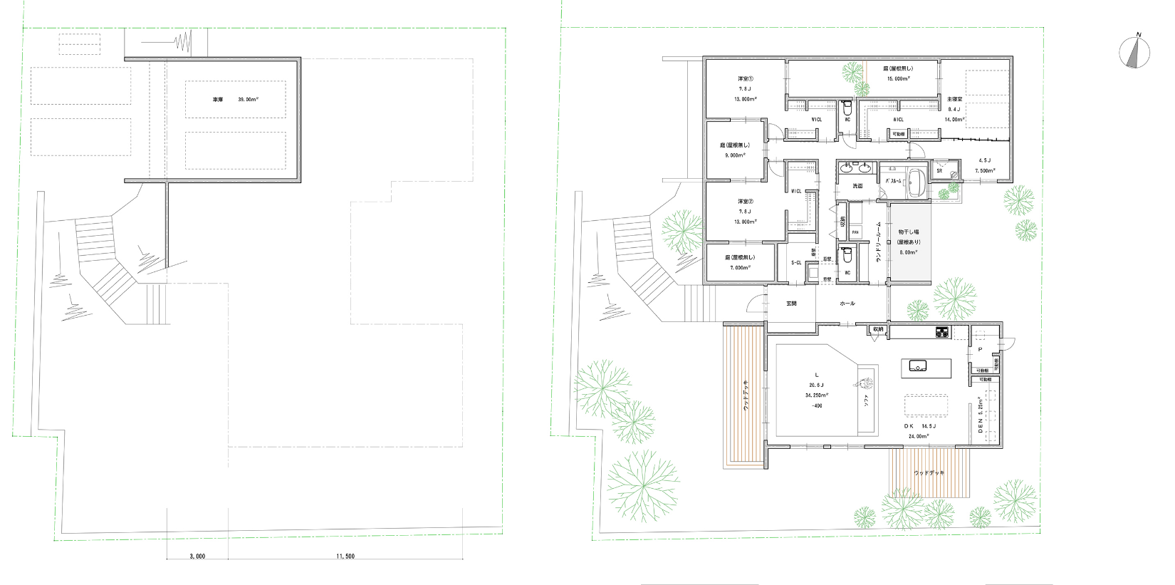
自然に抱かれた中庭と
重厚な外観がもたらす風格
アプローチから玄関、ホールへと続く美しい導線。軒下テラスや中庭で過ごす穏やかな時間。まるでリゾートにいるような心地よさを感じる住まい。

- ・延床面積
- 175.63㎡(約53.13坪)
- ・施工床面積
- 219.14㎡(約66.29坪)
-
光を取り込み、風を通す心地よい中庭
家の中心に配した中庭が、自然との調和と開放感をもたらす特別な空間をつくります。家族の団らんや来客のおもてなしを上質に彩ります。
-
軒下テラスとウッドデッキが織りなす開放性
ウッドデッキでは太陽を浴び、軒下テラスでは静かに寛ぐ。用途に合わせて楽しめる豊かなアウトドアリビング。屋内外をシームレスに楽しむ贅沢な暮らしを叶えます。
-
広々LDKと一体感のある和室
仕事や勉強、趣味や仮眠など多目的に使える便利な空間。家族の暮らしを柔軟に支えます。来客時のおもてなしにも対応可能。多彩な使い道で日常をより豊かに彩ります。
-
収納力に優れたWICを全洋室に配置
全ての洋室にウォークインクローゼットを備え、衣類や荷物もすっきり収納。広々とした設計で快適なプライベート空間を実現します。
光と風を抱く中庭と
ウッドデッキを楽しむリゾート
光や風を感じる中庭とデッキが特別なひとときを演出し、日常に上質な潤いをもたらします。ゆっくりとお茶を飲みながら移り行く風景を楽しみ、読書やプライベートな趣味の時間が豊かな時間を紡ぎます。

- ・延床面積
- 187㎡(約56.56坪)
- ・施工床面積
- 229.95㎡(約69.56坪)
-
中庭に空を切り取りウッドデッキで寛ぐ贅沢
ゆとりある敷地に広がる中庭は、家族が集まり憩う時間をより豊かに彩ります。開放感が広がり心地よさを演出します。
-
機能性と収納力を兼ね備えた住まい
各部屋にウォークインクローゼットを備え、家事導線を考えた水まわりと開放的なアイランドキッチンで快適な暮らしを実現。
-
愛車を守る地階ガレージのある贅沢設計
地階車庫に2台収まるゆとり設計。快適さとプライベート感を備えた安心の住まいです。
-
自然と調和する広々とした庭
邸宅に広がる開放的な庭。四季の彩りを感じながら、緑と調和する上質な暮らしが日々の潤いをもたらします。
自宅にいながらスパリゾート
を楽しめる癒しの家
サウナを備えた広々としたバスルーム。自宅で贅沢なリラクゼーションを堪能できる邸宅。日常に極上の癒しをもたらす贅沢な住まい。

- ・延床面積
- 247.93㎡(約75坪)
- ・施工床面積
- 280.82㎡(約84.95坪)
-
邸宅の浴室に広がる開放感がうれしいサウナ
自然に囲まれた地で、癒しのサウナ付きバスルームを兼ね備えた深い至福の時を過ごすことができる住まい。体を動かした後にじっくりと心身を癒し、休憩は和室もおすすめ。
-
自然美を望む2階テラス。チェアを並べて過ごす穏やかなひととき
広いデッキテラスにチェアを置けば特等席に。雄大な景観を日常に取り込み、上質なひとときを演出します。
-
地階駐車場からエレベーターで直結する邸宅
2台駐車可能な地下車庫とエレベーター完備。客人を迎える美しいエントランスが魅力。
-
広がる景色を前に仕事ができるview office
窓から四季折々の景色を楽しみながら仕事や趣味ができる「景色に面したワークスペース」。
27帖超のLDKと
眺望を楽しむバルコニー
2階の大きなバルコニーは、自然を望みながらデッキチェアやテーブルを置いてリラックスできる家族のセカンドリビング。

- ・延床面積
- 189.95㎡(約57.46坪)
- ・施工床面積
- 214.90㎡(約65.01坪)
-
開放感あふれる広々としたLDK
27帖超の大空間リビングで、家族が自然と集まる場所に。
キッチンは収納力抜群のパントリーがあり、調理台まわりがスッキリ。心地よい空間が広がります。 -
豊かな自然を望む2階のバルコニー
12帖超の広々バルコニーから、四季の移り変わりが美しい自然を望む贅沢なひととき。プライベート感を味わうことのできる家族の憩いの場所。
-
家事効率を高める動線設計
効率的に行いたい家事をサポートする導線設計。
洗う・干す・しまうを一直線に。家事をラクにする水まわり動線が魅力。 -
充実した収納とプライベート空間
全室収納完備、主寝室にはWIC。日々の生活が整う、落ち着いた暮らしを実現。
LDK+和室のゆとりが
家族の時間を広げる住まい
20帖超のLDKに隣接する和室が、落ち着いた静かな空間を引き立てる魅力的な間取り。開放的で多用途な空間を生み出しています。

- ・延床面積
- 192㎡(約58.08坪)
- ・施工床面積
- 225.48㎡(約68.21坪)
-
広々としたLDKと和室のつながり
LDK+和室のゆとりある空間。ゲストルームや子どもの遊び場、将来の居室としても活用可能な和室は家族の時間を広げます。
-
プライベート性の高いWIC付きの主寝室
主寝室に大型ウォークインクローゼットを直結し、室内をスッキリ整えます。主寝室はバルコニーに面しており、明るく快適なプライベート空間が広がります。
-
ワークスペースを備えた実用性の高い邸宅
書斎やセカンドリビングとして使える空間があることで、家族との時間を大切にしながら充実した日々を実現できます。
-
豊かな時間を大切にする家事導線
キッチン横にパントリーを完備。水まわりの浴室・洗面・脱衣所が一直線にまとまり、効率的な動線を完備。
水景を配した中庭と縁側が
心を癒す、贅沢な住まい
みずのにわと広縁が住まいの中心に。縁側から眺める美しい庭が豊かな日常を叶えます。また、朝のにわ、夕のにわもあり、日々の移ろう美しい自然を堪能できる贅沢な住まいです。

- ・延床面積
- 247.93㎡(約75.00坪)
- ・施工床面積
- 280.82㎡(約84.95坪)
-
みずのにわと縁側、朝夕それぞれの庭
中心に水景を取り入れ、和の趣と癒しを感じられる贅沢な設計。中庭に面した広縁で、四季折々の景色を楽しみながらくつろげる空間。
-
いつでも使えるリラクゼーション設備のサウナ
浴室横にサウナを備え、自宅でリラクゼーションを満喫。ゆったりとしたバスルームでくつろぎのひとときを。
-
地階に2台駐車できる専用ガレージ
プライベート感あふれる地下ガレージを完備。愛車を2台収める邸宅ならではの贅沢。エレベーター設置も完備。
-
大空間LDKと豊富なWIC収納、機能性
広々としたLDKと中庭の水景が調和する邸宅。キッチンからは朝のにわからの優しい光が差し込み、穏やかな日々が流れます。収納抜群の設計でお部屋の中は快適に。
建築条件なし
建築条件なしですので、お好きな時期、お好きなハウスメーカーで建てて頂くことが可能です。






